Near the eastern border of Talegaon-Dhamdhere village, two late 18th-century temples stand – Mārutī and Mahādeva. The Mārutī temple features a rectangular maṇḍapa with carved arches and a new Mārutī image.
Time Period
4th August 1777 CE
Patron
Maratha
Deity
Maruti
Location
Talegaon-Dhamdhere
There are two temples of Mārutī and Mahādeva dating back to the late eighteenth century CE near the eastern border of the village Talegaon-Dhamdhere. River Velu flows from the east of these temples. A small temple of Puṇḍalīka is at the south of the Mārutī temple.
Main gate of the village.
Mārutī Temple (18.667893, 74.156556): Situated at the eastern boundary of the village is a west-facing Mārutī temple elevated on a high platform. To access the rectangular maṇḍapa of the temple, one must ascend four steps. This maṇḍapa features three carved arches, supported by two stambhas and two ardhastambhas. The dimensions of the maṇḍapa are 362 cm in length and 680 cm in width. In the sabhāmaṇḍapa, two large windows are present on the north and south sides. Additionally, two niches can be observed on these walls. The maṇḍapa as a whole also has three arches, supported by two pillars and two pilasters. In addition, four niches can be found within the maṇḍapa.
Directly accessible from the sabhāmaṇḍapa is the garbhagṛiha, measuring 346 cm in length and 600 cm in width. The garbhagṛiha houses a new image of Mārutī in a rectangular space with dimensions 157 cm (L) x 175 cm (W). It is located at the center of the maṇḍapa. Along the side wall, the original image of Mārutī and a Gaṇeśa image are placed. There is room to circumambulate this garbhagṛiha. The vitānas of both the garbhagṛiha and sabhāmaṇḍapa in the Mārutī temple are designed to taper towards the top, forming a pyramidal shape. Currently, a small śikhara is visible atop the temple.
The Mārutī temple
A ground plan of the Mārutī temple.
A new image of Mārutī
The original image of Mārutī
Three arches to the inner maṇḍapa.
Inscription: The exterior of the Mārutī temple is plain and has a Marathi inscription carved in Devanāgarī script on the upper left-hand side of the façade. As mentioned in this inscription, the temple has been constructed in śake 1699 i. e. 4th August 1777. This region was ruled by Sawai Madhavrao Peshwa at that time. The inscription is in good condition, but some of the letters are unrecognisable due to paint application on them and also wrongly painted letters. Here is the readong of the inscription,
|| Swastī śrīnrupa Śālivāhana śake 1699
|| Hemaḷambī samvatsare śravana śuda 1 śrī mā
|| Rutī caranī tatpara Yadoji vā Vardhoji me
|| Ṭe sīpī nīrantara: Mallara Jeevan jo (?) tī (jī) śa (?)
|| De (?) doji (?) vā Bhabanji vā Kado (?) ji Cape Pārthru
Translation: "In the year 1699 of the Nrupa Śālivāhana śaka, during the Hemalambī samvatsara, specifically on the day of śrāvaṇa śuddha pratipadā (Monday), Yadoji Varadhaji Mete Shimpi initiated the construction of the Shri Mārutī temple. The muhūrta, or the auspicious moment for beginning construction, was determined by Malhar Jeevan Jyotiṣī (Jośī). The construction itself was undertaken by Dadoji (?), Kadoji, and Bhavanji Kadoji Cape pātharavaṭa." This historical detail was previously read and documented by Mr. Pandurang Narsimha Patvardhan. The inscription is significant for not only listing the host responsible for the temple's construction but also for naming the astrologer who selected the muhūrta and the masons involved in the building process. Noteworthy in this inscription is the use of the word 'Pārthru,' which serves as an abbreviation for pātharavaṭa, meaning a stone worker.
Besides this detailed inscription, another three-line inscription is carved on the step of the sabhāmaṇḍapa in moḍī script. Within this secondary inscription, the name 'Gaṇapata' and the figure 1799 are identifiable. According to local sources, the Mārutī temple has been endowed with a grant of 62 acres of land.
A Marathi inscription
Another three-lined Modi inscription.
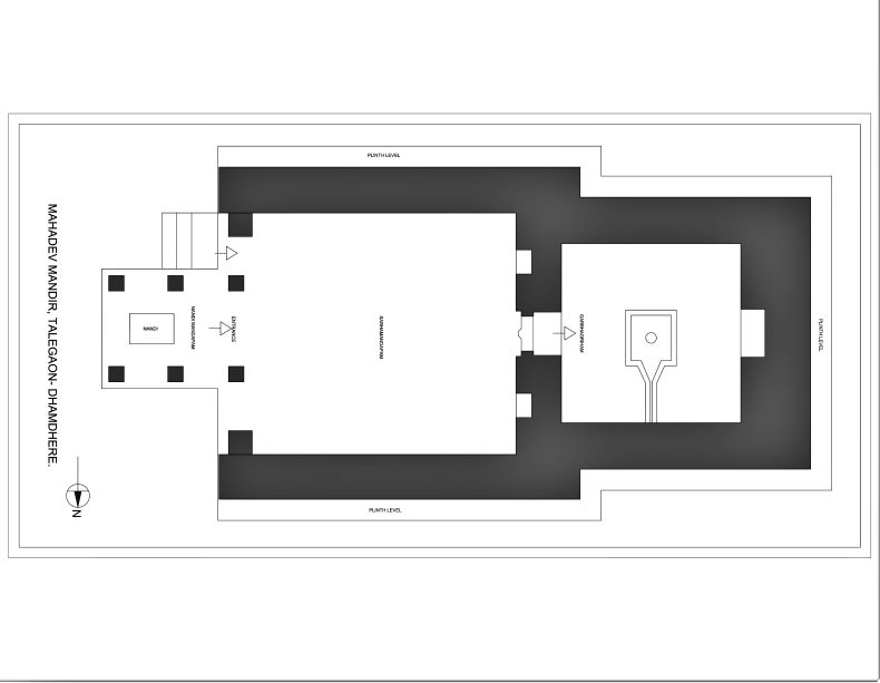
Mahādev Mandir (18.668032, 74.156423): The east-facing Mahādeva temple is adjacent to the Mārutī temple. It seems that this temple belongs to the same period as that of the Mārutī temple. The structure of this temple is similar to the Rāmeśwara temple in Talegaon Dhamdhere. The ground plan of this Mahādeva temple consists of a nandīmaṇḍapa and garbhagṛiha attached to the sabhāmaṇḍapa. Nandīmaṇḍapa has a śikhara. The sabhāmaṇḍapa has three arches. There is a śivalinga in the garbhagṛiha. The śikhara on the garbhagṛiha has been repaired recently. However, there are no sculptures now on the śikhara. There is a well in front of the Mahādeva temple and the entire temple is surrounded by a fencing wall. Presently Mr Panda Gadekar (Gurav) works as the priest of the temple.
The ground plan of the Mahādeva temple
The east-facing Mahādeva temple
Images of Natha yogis and Siddhas on the Someshvar temple at Pimpri-Dumala
Preservation of a 300 year old Maratha Temple by Tattva Heritage Foundation
The Gurav Temple Priests of Maharashtra
Launch of the Website for the Temple Mapping Project
Share
Comments
Write A Comment
Up Next
Mapping, Documenting & Conserving the Heritage Temples of India
Contact us with your queries and suggestions at templeproject@tattvamag.org
©2023 Heritage Temples. All rights reserved.